garden bay

INDIA

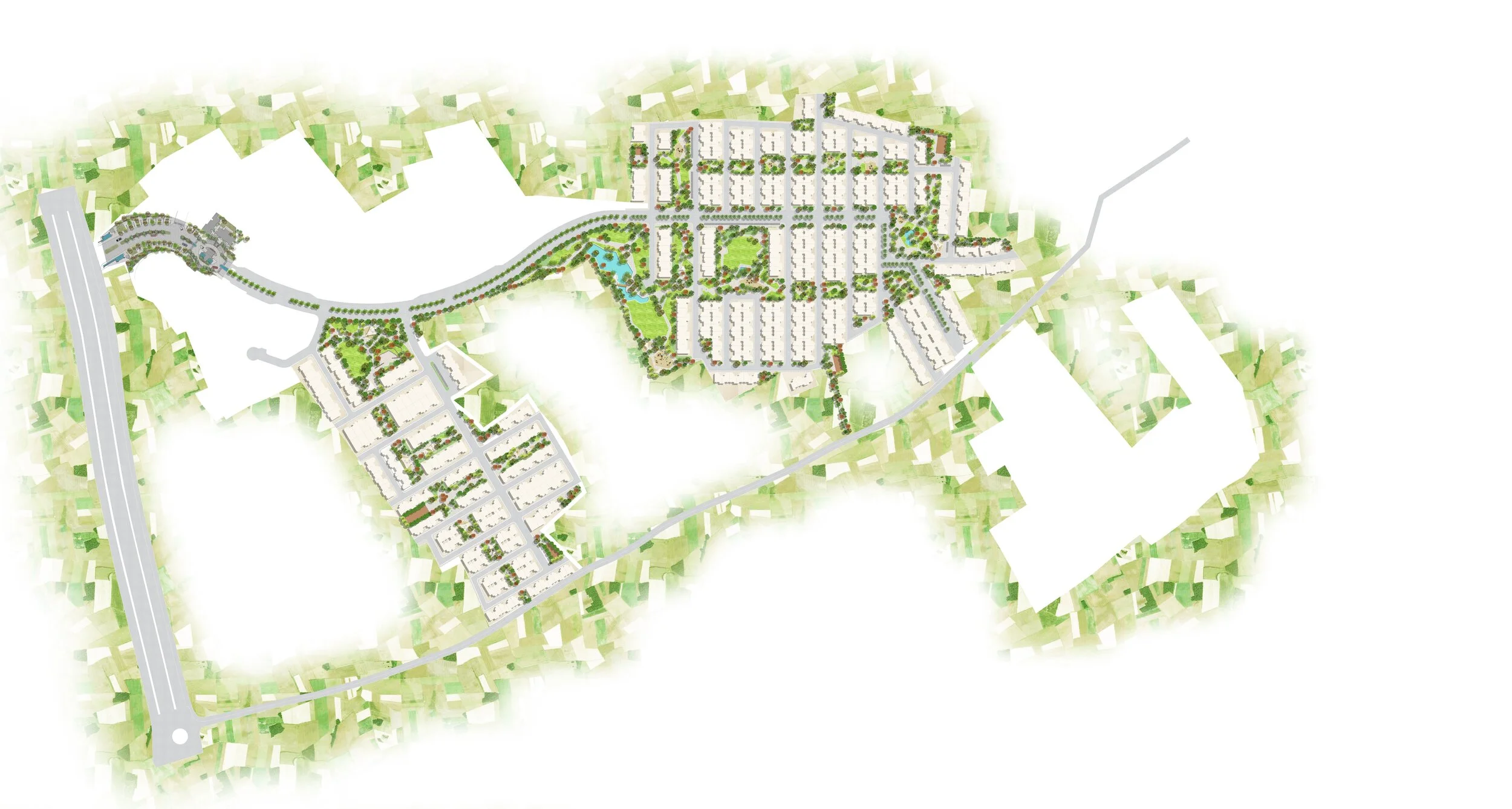
The Garden Bay is a large-scale residential project aiming to create a luxury gated community in India. With several residential units, the design concept was to provide the future residents with several options of outdoors activities, catered to a vast range of ages. There are larger community parks, different pocket parks each with activities to satisfy specific age groups, yoga meditation parks, and street urban plazas. Establishing a cohesive and unified design was challenging but positive experience.

Master Plan

Master Plan

Pocket Park 1

Pocket Park 1

Community Park

Community Park

Yoga Meditation Park

Yoga Meditation Park

Pocket Park 2

Pocket Park 2

Pocket Park 3

Pocket Park 3

Street Urban Plaza

Street Urban Plaza

Section through Community Park

Section through Community Park